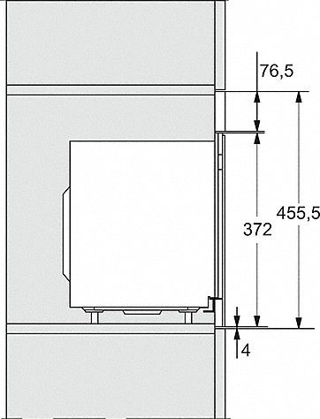
Схема для микроволновой печи Miele M 2230 SC OBSW- вариант 5

Сохранить файл: Схема для микроволновой печи Miele M 2230 SC OBSW- вариант 5JPG, 30.64 Кб
Схема для микроволновой печи Miele M 2230 SC OBSW- вариант 5
destination picture
Фирменный Шоурум High Level в МосквеРублевское шоссе, дом 52а, ТЦ «Casa Ricca Expo», 3 эт.
destination route