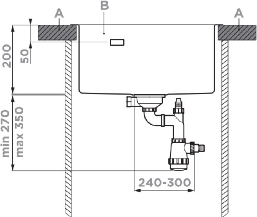
Схема для мойки Omoikiri Akisame 51-LG- вариант 2

Сохранить файл: Схема для мойки Omoikiri Akisame 51-LG- вариант 2JPG, 74.88 Кб
Схема для мойки Omoikiri Akisame 51-LG- вариант 2
destination picture
Фирменный Шоурум High Level в МосквеРублевское шоссе, дом 52а, ТЦ «Casa Ricca Expo», 3 эт.
destination route