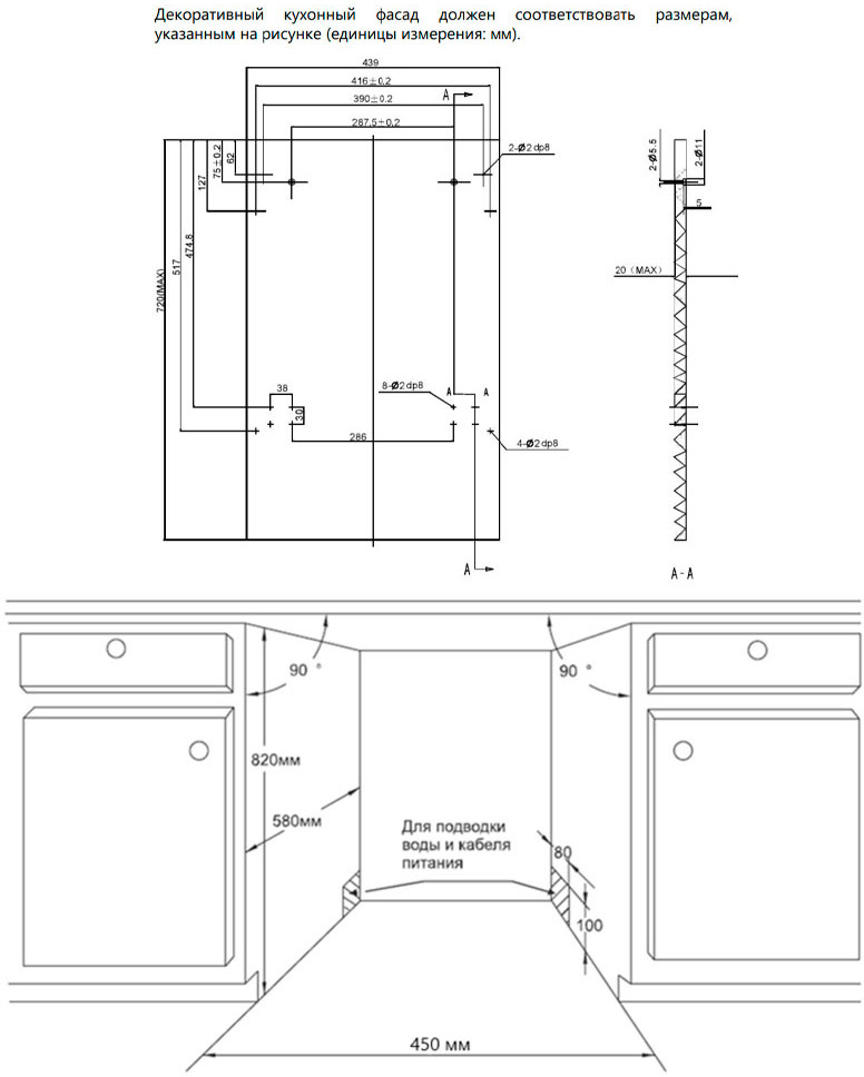
Схема для посудомоечной машины Maunfeld MLP-083I

Сохранить файл: Схема для посудомоечной машины Maunfeld MLP-083IJPG, 167.22 Кб
Схема для посудомоечной машины Maunfeld MLP-083I
destination picture
Фирменный Шоурум High Level в МосквеРублевское шоссе, дом 52а, ТЦ «Casa Ricca Expo», 3 эт.
destination route