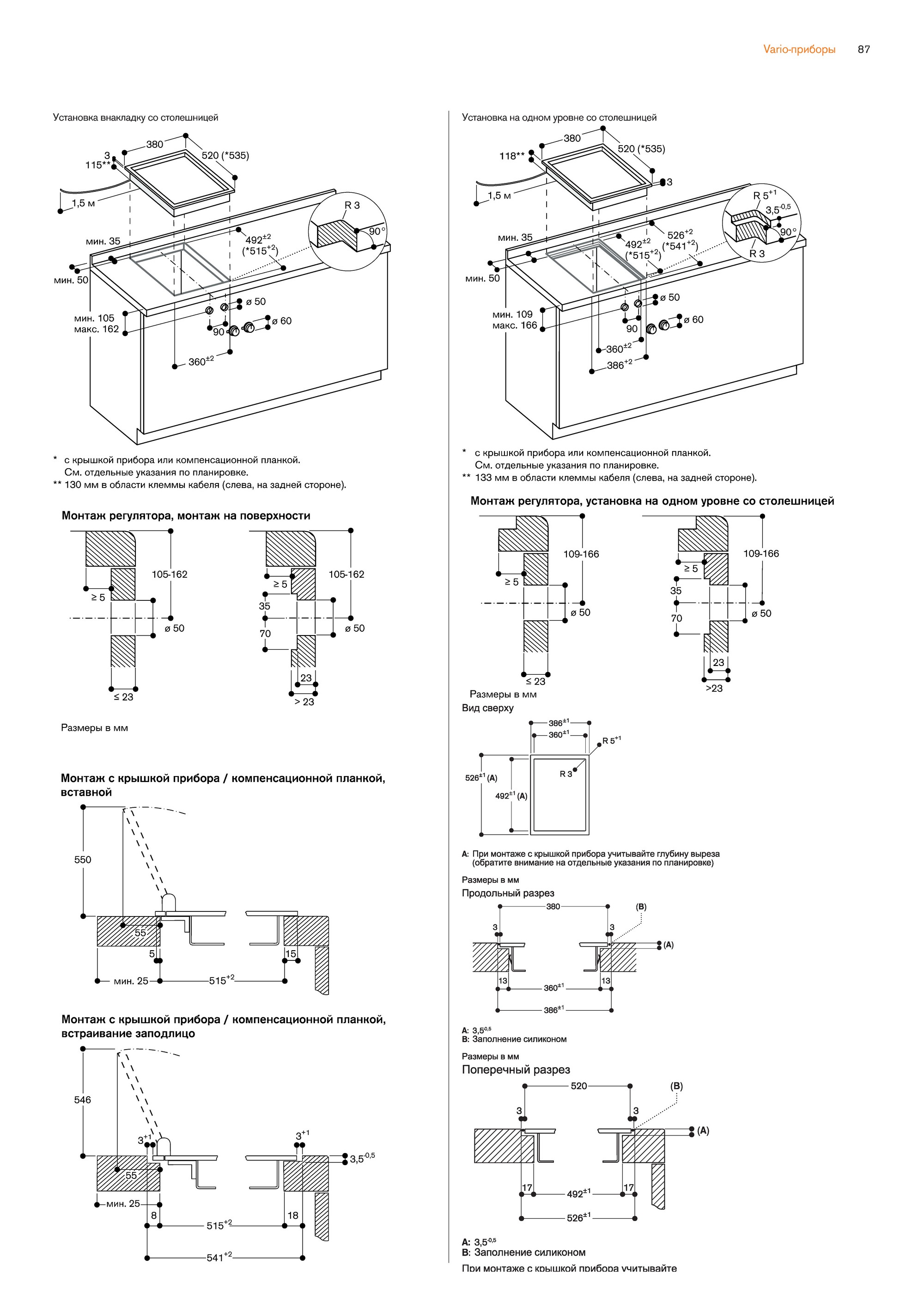
Схема для варочной панели Gaggenau VP414115

Сохранить файл: Схема для варочной панели Gaggenau VP414115JPG, 550.46 Кб
Схема для варочной панели Gaggenau VP414115
destination picture
Фирменный Шоурум High Level в МосквеРублевское шоссе, дом 52а, ТЦ «Casa Ricca Expo», 3 эт.
destination route