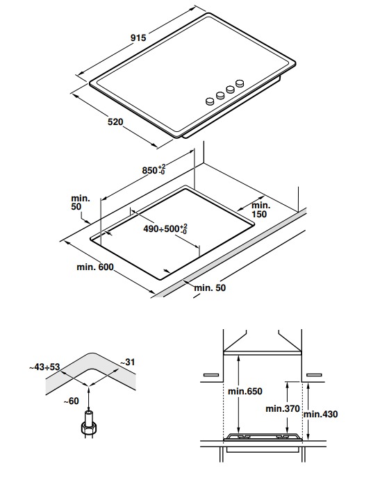
Схема для варочной панели Gaggenau CG291210

Сохранить файл: Схема для варочной панели Gaggenau CG291210JPG, 49.65 Кб
Схема для варочной панели Gaggenau CG291210
destination picture
Фирменный Шоурум High Level в МосквеРублевское шоссе, дом 52а, ТЦ «Casa Ricca Expo», 3 эт.
destination route