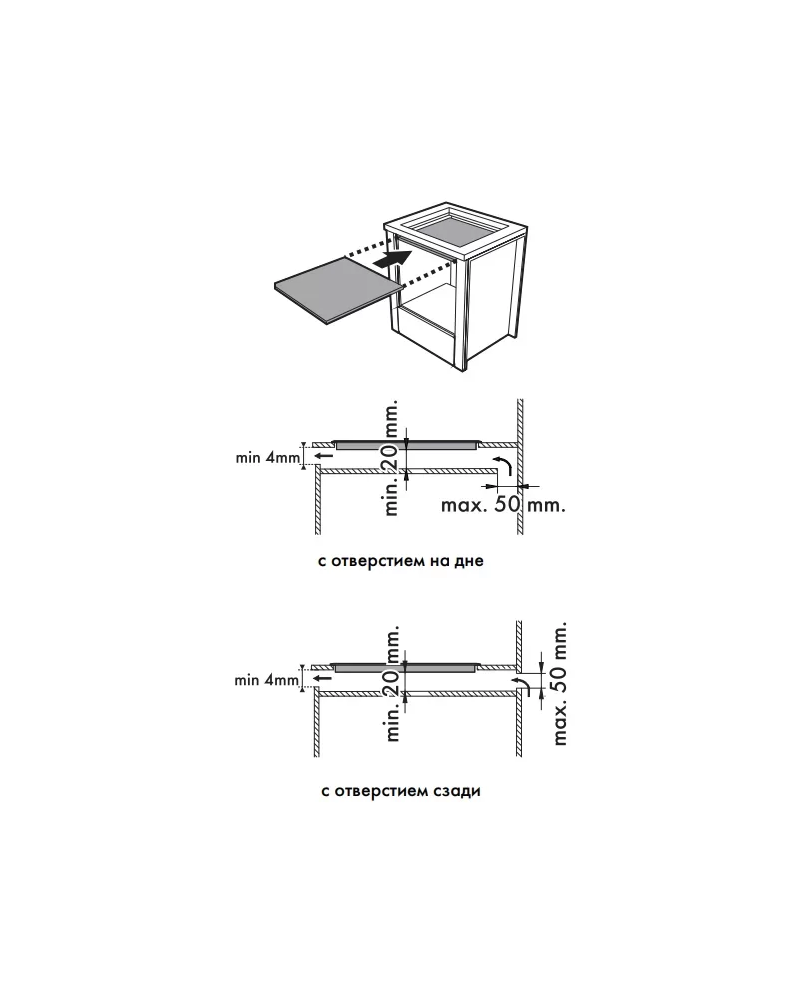
Схема для варочной панели Smeg SI964NM- вариант 2

Сохранить файл: Схема для варочной панели Smeg SI964NM- вариант 2JPG, 98.08 Кб
Схема для варочной панели Smeg SI964NM- вариант 2
destination picture
Фирменный Шоурум High Level в МосквеРублевское шоссе, дом 52а, ТЦ «Casa Ricca Expo», 3 эт.
destination route