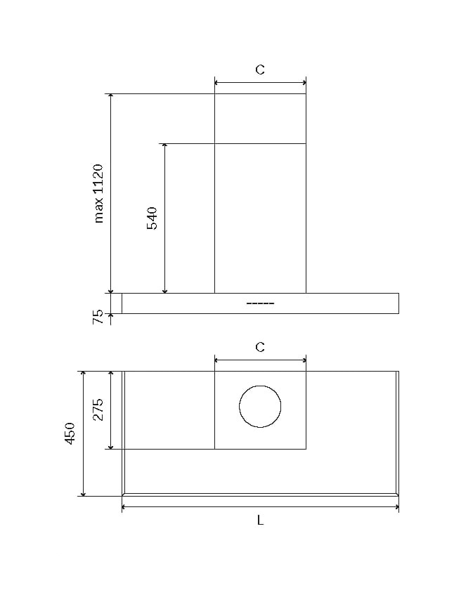
Схема для вытяжки ILVE AGK90/GR

Сохранить файл: Схема для вытяжки ILVE AGK90/GRJPG, 36.07 Кб
Схема для вытяжки ILVE AGK90/GR
destination picture
Фирменный Шоурум High Level в МосквеРублевское шоссе, дом 52а, ТЦ «Casa Ricca Expo», 3 эт.
destination route